宴 会 BANQUETS

REIKA 麗華(れいか)の間

シンプルで温かみのあるインテリア、
ほぼ正方形の空間は、様々なご宴席に対応可能。
講演&パーティーなどのお集まりは
同フロアの小宴会場と合わせてご利用いただくことで、
スムーズなご案内が叶います。

基本情報

広さ 208㎡
ご利用人数
  • 着席 : 〜120名
  • 立食 : 〜120名
  • スクール : 〜140名
レイアウト
  • 着席
  • 立食
  • スクール

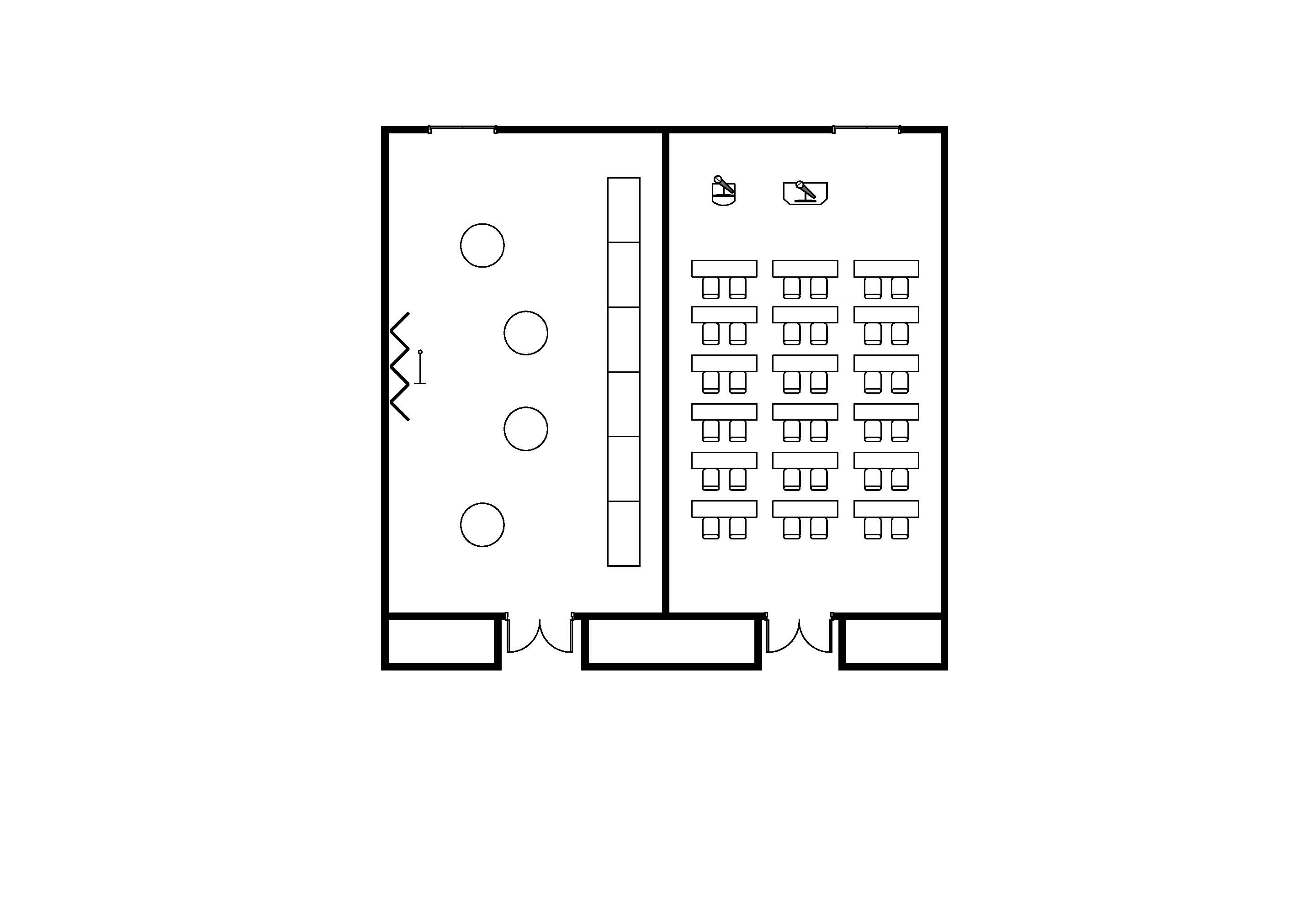
レイアウト

レイアウトを印刷する 全体利用 スクール
レイアウトを印刷する 会議&懇親会利用(着席)
レイアウトを印刷する 会議&懇親会利用(立食)
全体利用
着席
立食
スクール
会議&懇親会利用
着席
立食

料理プラン

  • ブライトンパーティープラン

    お集まりの趣旨に合わせてシェフがメニューをご提案。歓送迎会、同窓会、懇親会、祝賀会などさまざまなパーティーシーンにご利用いただけます。

    人 数 30名様〜
    料 金 10,000円〜
    詳細はこちら
  • THE SESSION ザ・セッション

    大切な人に、大切な日に…。
    レストランの愉しみをそのままに味わう
    和洋中の特別なおもてなし。

    人 数 20名様〜
    料 金 15,000円〜
    詳細はこちら

お問い合わせ

ご宴会・会議に関するお問い合わせ
RESERVATION